2006 aastal ehitatud stiilse arhitektuurilise lahendusega kvaliteetne eramu asub Pirital Kloostrimetsas Tallinna Botaanikaaia vahetus läheduses. Kasutusluba on olemas.
Madalvundamendile ehitatud raudbetoonist konstruktsioonidega ja välisfassaadilt puit/kivivoodriga eramu jaguneb kaheks eraldiseisvaks pooleks, millest mõlemad on oma privaatse sissepääsuga ja autonoomselt kasutatavad ka paarismajana, samas võimalik kergelt liita ka üheks tervikuks.
Ainulaadse eramu üldpind on 393,1 m2 (sh terrassid 90 m2, rõdu 27 m2), köetavat pinda on kokku 263,4 m2. Avatud plaanilahendus, suurte akendega projekt ja kõrged laed (osaliselt kuni 3,9 m2), mis tagavad meeldiva valgusküllasuse ja avarustunde. Siseviimistluses on kasutatud heledaid pastelseid värvitoone ning kvaliteetseid materjale, põrandakatteks I korrusel laiub marmor, teisel korrusel loodussõbralik saarepuidust parkett, siseuksed Alpi spoon.
Eramust leiab kokku 3 puuküttega kaminat. Stiilset omapära lisavad pisidetailideni läbi mõeldud ja hoolikalt välja valitud aksessuaarid ja disainvalgustid. Kööginurgas on eritellimusel valminud köögimööbel koos kogu tehnikaga (elektripliit, õhupuhasti, külmkapp ja nõudepesumasin). Esikus ja magamistubades on lükandustega suured garderoobkapid. Kütteelemendiks on autonoomne gaasiküte (katel Wolf), I korrusel on põrandaküte ja II korrusel on radiaatorid. Eramul on soodsad ülalpidamiskulud, kulud kokku ca 200 – 430 eurot kuus. Värske õhu tagab soojustagastusega ventilatsioonisüsteem. Boileri suurus on 200L.
Eramu suuremas osas on üldpinda tervelt 170,8 m2 (lisaks rõdu II korrusel 27 m2 ja terrass I korrusel 60 m2).
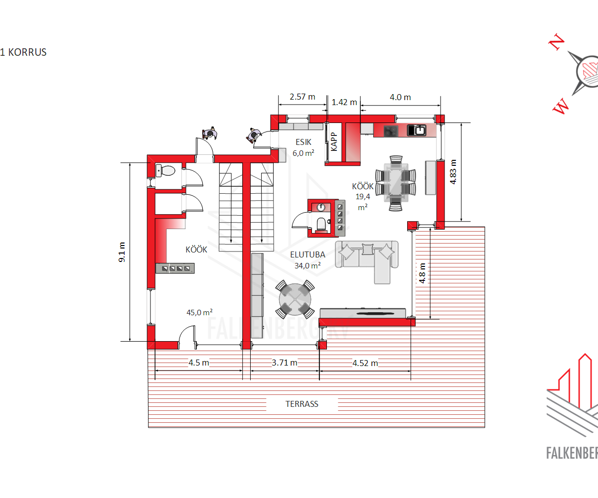
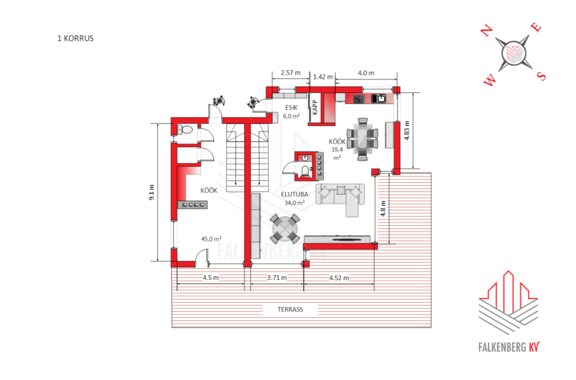
I korrusel asub suurejooneline elutuba koos köögiosaga, WC ja avar väliterrass grillinurk-lehtlaga.
II-korrusel asetsevad kolm eraldiseisvat magamistuba (suurim magamistuba kaminaga), WC-vannituba/dushiruum. Garderoob.
Eramu väiksemas osas on üldpinda kokku 92,6 m2 (lisaks terrass 30 m2).
I- korrusel elutuba/köök ja mõnus avar väliterrass. Garderoob. Grillinurga-lehtla kasutamise võimalus.
II-korrusel asuvad kaks eraldiseisvat magamistuba, WC/vannituba ja suur garderoob.
Kauni kinnistu suurus on kokku 1084 m2, kinnistu on korraliku paekivist aiaga ümbritsetud, millele lisandub 300m2 sissesõidutee kasutust. Hooldatud kinnistul on haljastus rajatud vastavalt haljastusprojektile. Kinnistul kokku 6 parkimiskohta, millest 2 on varjualusega kaetud. Elamule on väljastatud kasutusluba.
Suurepärane elukoht privaatset ja hinnatud piirkonda hindavale perele, kes ühtlasi väärtustab modernset elamist linnas kuid samas merelähedust ning rahulikku rohelist parimat elukeskkonda.
Objekti info
- Asukoht keskuses
- Avatud köök
- Ehitatud 2006 aastal
- Energiamärgis B
- Heas korras
- Hoone materjal Kivimaja
- Internet
- Kaabel TV
- Kanalisatsioon tsentraalne
- Köögimööbel
- Kõrghaljastus
- Korruseid 2
- Metsa lähedal
- Omandivorm Kinnistu
- Põrandaküte
- Tasuta parkimine












































































































